banner

контейнерные дома

Главная /проектов /контейнерные дома /

Здание приемной США

новые продукты

Здание приемной США

2025-08-21

В 2023 году мы осуществили поставку контейнерного дома для строительства приемного здания в США.

Название проекта: Здание приемной США

Yumisteel предлагает комплексные решения — от проектирования конструкций до отделки. Ознакомьтесь с нашим портфолио проектов для жилья и найдите вдохновение.

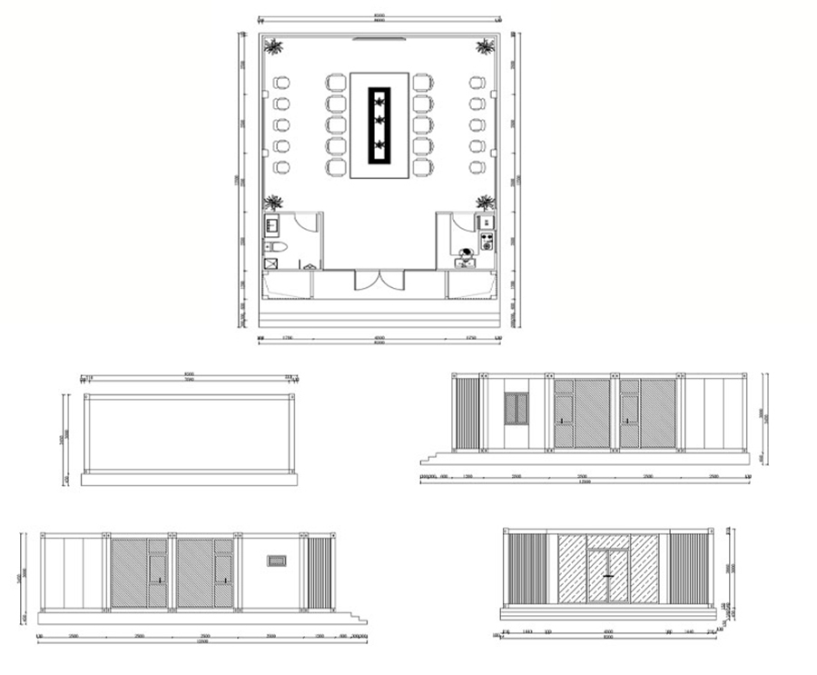
Дизайн

Design drawings

Э экстерьер

Exterior of the Reception building

Exterior of the Reception building

Интерьер

В отделке интерьера использованы фибровые декоративные панели, что очень чисто, аккуратно и красиво.

Interior of the Reception building

Interior of the Reception building

Toilets in the reception building


Приглашаем вас обсудить с нами более подробную информацию о ваших индивидуальных контейнерных домах.

Если вам нужна дополнительная информация или у вас есть вопросы, обращайтесь к команде Yumisteel.

оставить сообщение
Если вы заинтересованы в наших продуктах и ​​хотите узнать более подробную информацию, пожалуйста, оставьте сообщение здесь, мы ответим вам, как только сможем.

ведущий путь в строительстве и гражданском строительстве

33

Годы опыта

 
оставить сообщение оставить сообщение
Если вы заинтересованы в наших продуктах и ​​хотите узнать более подробную информацию, пожалуйста, оставьте сообщение здесь, мы ответим вам, как только сможем.